当前位置:规范网资料内容详情

几个典型的木栈道cad施工图(共5张图纸)

几个典型的木栈道cad施工图(共5张图纸)

几个典型的木栈道cad施工图(共5张图纸)

几个典型的木栈道cad施工图(共5张图纸)

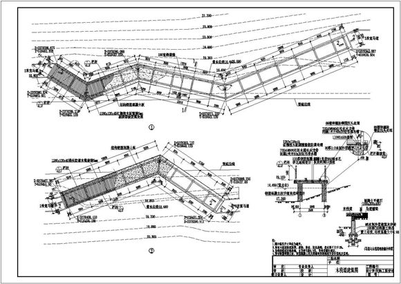
本资料为:几个典型的木栈道cad施工图(共5张图纸),包括:木栈道建筑图,木栈道方案概图,九曲木栈道及栈道平台图,玻璃跌水道设计图等,设计精准,可供网友下载参考

声明:资源收集自网络或用户分享,仅供学习参考,如侵犯您的权益,请联系我们处理。

不能下载?报告错误