
非常详细的220KV变电站全套电气设计图纸(34张图)

非常详细的220KV变电站全套电气设计图纸(34张图)

非常详细的220KV变电站全套电气设计图纸(34张图)
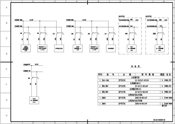
220kV变电站远景为3台240MVA三绕组变压器,220kV/110kV/35kV电压等级,220kV侧双母线,110kV为单母三分段,35kV为单母六分段,35kV接地变及接地电阻布置于主变低压侧

非常详细的220KV变电站全套电气设计图纸(34张图)

非常详细的220KV变电站全套电气设计图纸(34张图)

非常详细的220KV变电站全套电气设计图纸(34张图)
220kV变电站远景为3台240MVA三绕组变压器,220kV/110kV/35kV电压等级,220kV侧双母线,110kV为单母三分段,35kV为单母六分段,35kV接地变及接地电阻布置于主变低压侧
声明:资源收集自网络或用户分享,仅供学习参考,如侵犯您的权益,请联系我们处理。
不能下载?报告错误