一、场地总平面布置原则
本工程工期紧、任务重、场地复杂。在进行现场平面布置时,我们遵循以下几个原则:
1、临时设施布置除满足有关文明施工现场的要求,满足业主要求,同时避免频繁搬迁外,还应充分考虑现场场地分布的实际情况。
2、从五节一环保出发,在不增加项目成本的情况下,优先利用新技术、新材料。
3、场地配备的二级配电箱可以满足相应的功率要求。
4、消防设施的布置满足防火要求。
5、本项目临时办公区、生活区、及现场施工临时道路施工时充分考虑绿色环保施工,与业主沟通提出永临结合概念。
6、项目充分利用现场原有道路及围墙进行现场布置。
二、办公生活设施布置
1、项目办公区
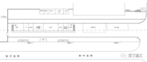
项目管理人员、业主、监理办公室位于拟建建筑物北侧道路上,项目办公区按照二字型布置,前排为办公室,后排为样品室、标养室、卫生间等,东西长40m,南北长10m,占地面积4000㎡,建筑面积550㎡;劳务办公室、仓库、值班人员住宿位于拟建教学楼西北角,南北长26m,东西宽8m,每层6间,共2层。

现场临建平面布置图

项目办公区平面布置图
在项目部设置消防池及消防设施集中点,其中消防设施包括消防铲、灭火器、消防桶等。项目部内不设停车场及运动场地,停车及户外运动使用甲方现有场地。临建办公室采用整体组合集装箱式板房,宿舍、仓库、门岗亭、标养室、卫生间等采用全新A级玻璃丝棉(彩钢夹芯板)活动板房,室内铺设地板砖,室内吊顶采用PVC吊顶,以良好的精神风貌迎接各方检查。
2、工人生活区
沿用宿舍楼工人生活区。
三、各分项施工做法
1、大门做法
根据《工程项目现场标准化图册》要求,施工现场出入口处设置一个10米大门(门楼式),西侧设置品牌墙,大门内侧设置自动洗车平台,详见图:施工现场出入口大门效果图。施工现场出入口设置门禁系统,门禁及监控系统效果图。

施工现场出入口大门效果图

门禁及监控系统效果图
2、活动房基础做法
1)彩钢板房的基础:基础采用砖砌圈梁沿活动房四周设置,每间房间隔墙处设置砖砌筑连系梁,并用水泥砂浆粉刷。基础地圈梁(24墙)砌筑完,位于基础内的雨污水管,用塑料薄膜和模板覆盖后,立即进行回填,回填土必须反复夯实,避免基土沉降。地坪采用C20细石混凝土浇筑,80mm厚。室内地坪高于室外地坪150mm,防止雨水进入房间。
2)集装箱活动房基础:基础按照厂家提供的基础施工图浇筑素混凝土地梁,并在相应位置留设沟槽,中空位置填土夯实,浇筑80mm厚地坪,地坪面与基础梁顶相平。
3、围挡及铁艺栅栏


围挡及铁艺栅栏参照图
围挡:采用5cm厚2.3m高彩钢夹芯板。
东侧使用原有围墙,西侧、南侧采用组合式彩钢板,彩钢板上喷涂公司标志。
基础做法为:通长砖基础,地面下37墙,地面上24墙。基础埋入地面下20cm,高出地面50cm,每隔3m设置立柱基础为200200400(出地面200,预埋300长4*4角钢,角钢出基础150mm)的C20砼,对应位置设置斜拉杆基础300*300*300,并预埋300长4*4角钢,角钢出基础150mm。(附图)
铁艺栅栏的设置高度及做法同学校原有栅栏,并结合标准化图册,在栅栏外按照5~8m等间距设置中建标识牌,详见图7:铁艺栅栏及中建标识牌。

铁艺栅栏及中建标识牌
4、吊顶做法
办公区房间采用T型铝合金做龙骨,上铺600mm*600mm石膏板,厕所、浴室、操作间采用PVC吊顶,厨房采用铝扣板吊顶。
5、办公区贴砖
办公用的办公室、会议室、项目部宿舍等为集装箱配装的复合地板,厕所、浴室、洗漱池等采用300*300防滑地砖。
6、洗漱池
洗漱池采用304不锈钢成品盥洗池,具体尺寸根据现场测量后加工制作安装。
7、临建房屋具体做法
项目部房间具体做法参照表1:项目部房间内具体做法,表2:临时办公室机电设计。


8、办公区排水系统
办公区排水采用自然排水(道路原有排水满足要求)
9、施工现场临时道路
北侧、西侧道路均为6m,东侧为学校原有10m宽道路,施工区域内部道路为4m,做法:素土夯实、30cm二灰土、20cmC25砼,具体布置见平面布置图。
10、其他
其余设施设置包括导向牌、施工图牌、样板展示区等等
综合导向牌:位于大门旁或具有导向意义的地方,可根据情况设置多个导向牌。
施工图牌:位于项目显要及安全的位置,本项目设置在进入项目办公区的道路两旁绿化带处。
样板展示区:暂设置在办公区东侧,具体内容将做详细的样板区方案。
安全体验区:设置在入口西侧,毗邻样板展示区,详见具体实施方案。
分类垃圾桶:办公区、生活区根据需要设置分类垃圾桶。

综合导向牌图

移动式分类垃圾桶

施工图牌
四、临时设施房屋分配一览表
临时设施房屋分为项目经理部、业主及监理办、劳务三大部分进行分配,项目部组织机构按照公司有关规定,项目组织机构设立项目经理、项目书记、生产经理、项目总工、商务经理、质量总监、安全总监为领导班子,下设五部一室,根据项目组织机构,进行办公区、住宿区房屋分配, 项目部办公室分配图,表1:项目部办公室分配表,表2:业主及监理办公室分配表。

项目部办公区分配图


五、场区临水、临电布置
1、场区临水布置
依据拟建工程室外配套图纸综合布置。
2、场区临电布置
施工现场用电必须贯彻落实安全第一、预防为主的方针,确保现场施工用电人员的人身安全和设备安全,并使施工现场用电设施的设计、施工、运行、维护做到安全、可靠、文明。严格执行《现行建筑施工规范大全》、《建筑施工计算手册》、《施工现场临时用电安全技术规范》JGJ46、《建筑电气设备安装调试技术》的有关规定。
施工现场临时用电由建设单位提供,从拟建工程西北角箱变引出,供项目生活生产使用。
六、安全措施
1、搭设过程的安全措施
1)临时设施施工期间,项目部安排由生产经理负责临时设施的施工,测量工程师负责测量技术工作,专职安全员负责安全检查和监督,其余各部门配合临建施工工作。
2)安全员、专业工长应就临时设施的搭建对所有施工人员进行施工技术和安全技术交底。
3)临时板房搭建选择有施工资质的专业队伍进行临时板房的搭建工作。
4)进入施工现场必需正确佩戴安全帽,高危作业必需采取可靠的防护措施,进入施工现场人员严禁吸烟。
5)现场道路、场地未硬化之前应派3人专门进行洒水降尘工作,必要时采取覆盖措施。
9、挖土机、压路机等机械操作人员及电工、电焊工等特殊工种人员必须持证上岗,严禁非操作人员动用机械设备。
10、现场配备足够的灭火器材,明火作业按照要求开具动火证。
11、六级大风以上天气不得进行板房搭建及室外高处作业工作。
12、所有房屋搭建完成后,自行组织检查验收合格后,报监理单位进行验收,验收合格后方可投入使用。
2、投入使用后的安全措施
1)项目办公区、业主及监理办公区、工人生活区大门、办公室、宿舍的走道内、财务室、食堂等地点设置摄像头24小时录像监控。
2)消防器材按照标准配备,每个功能区均配备10只灭火器。项目各区均设置保安2名,24小时轮班管理,设置专职安全员3名,负责监管办公区、生活区、施工现场用电、用火安全,并以定期和不定期的方式对职工进行消防知识教育和灭火器材进行检查,及时更换过期或报废产品。
3)建立相应的应急准备和预案,明确在紧急情况下的组织机构、人员分工和应急措施,并组织进行定期的演练。
七、质量保证措施
1、严格控制水泥、砂、电线电缆、给水管等材料的质量,做到不合格产品坚决不允许进入施工现场。
2、临建设施基础必需经过夯实后方准搭建,避免因基础不均匀沉降造成返工处理。
3、临时道路、场地硬化混凝土施工时应把握好面层压光的时间,避免地面起砂现象的发生。
4、地砖地面铺贴完成后,应临时封闭出入口进行养护,养护时间不少于7天。
5、注意成品保护,以及混凝土养护,冬季施工要及时覆盖岩棉被。
6、对于施工重点部位进行监督检查工作,施工中随时检查施工质量,对不符合质量要求部位随时督促改正
八、新产品、新技术应用
1、项目办公区与生活区室外照明以及卫生间、浴室采用太阳能灯;
2、利用废旧模板制作消防设施储物架,用于存放消防铲、消防桶、灭火器等。
3、卫生间和楼层内为声控式开关,以节省资源。
4、根据施工高峰期人数,现场拟采用成品化粪池。
5、办公区、生活区主干道采用太阳能节能灯。
九、临建平面布置图

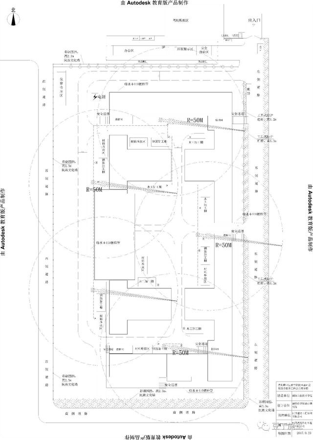
施工现场平面布置图
十、临建施工进度计划
