1.《地下工程防水技术规范》GB50108-2008
2.《屋面工程质量验收规范》GB50207-2012
3.《聚合物水泥防水涂料》JC/T894-2001
4.《聚氨酯防水材料》GB/T19250-2013
5.《弹性体改性沥青防水卷材》(聚酯胎)GB18242-2008
6.《改性沥青聚乙烯胎防水卷材》GB18967-2009
7.《聚氯乙烯防水卷材》GB12952-2011
8.《水泥基渗透结晶型防水材料》GB18445-2012
9.《建筑工程施工质量验收统一标准》GB50300-2013
一、外墙防渗漏
外墙防渗漏要点:
外墙防渗漏,主要有三道防线,一是外墙涂料和腻子,二是抹灰砂浆,三是结构墙体或砌体墙体。有时要加强防水会增加一层防水层,通常是涂刷一层水泥基防水涂料。
混凝土墙体的渗漏点常常是因为拉杆洞封堵不密实和预留孔洞的封堵不佳引起的。堵洞要采用专门的封堵材料,同时要凿喇叭和清孔,封堵要双面封堵而不是只进行单面封堵。
混凝土本身的一些质量缺陷也会引起渗漏。因此在抹灰前要对混凝土墙体本身的一些缺陷如开裂、露筋、蜂窝、麻面等要先按规范进行修补。
砌体墙面会因为砌块破裂、灰浆不饱满,墙体开裂,顶砖缝隙,砌体墙与混凝土墙体之间的粘接不实等原因而引起渗漏。为防止砌体墙出现开裂现象,需搞图纸和规范设置拉结筋、构造柱、圈梁、过梁、卧梁等构造,按规范严格保证砌体的技术间歇不急着砌高和顶砌。
抹灰前要满挂网,减少抹灰裂缝。分层抹灰,抹灰搓压和表面收光,增加抹灰的密实度。使抹灰层成为一层防渗漏的壳。为了提高抹灰层的防渗效果,在砂浆中适量加入防水剂和杜拉纤维。外墙涂料与腻子,选用弹性好憎水性强的产品,保证不漏刮不漏刷,并满足最低涂抹厚度标准要求。
外墙防渗漏做法:
1.外墙螺栓孔洞防漏
外墙(剪力墙)采用三段式止水螺杆,工艺流程:砼墙面扩孔割除螺杆浇水湿润水泥砂浆堵塞外侧JS防水施工饰面施工


2.外墙孔洞防渗漏
(1)混凝土外墙(有保温)。如外墙脚手架拉杆、悬挑架型钢穿墙等孔洞的封堵。
工艺流程:穿墙钢管或悬挑架型钢取出基层凿毛湿润两侧支模浇注混凝土两侧拆模凿除凸出砼外侧刷JS 防水外墙保温及装饰面层施工。


(2)砌体结构外墙(有保温)
工艺流程:基层清理屋面保温层找坡层管口防水附加层屋面防水层抹灰打密封胶刚性保护层。

3.穿外墙管道防渗漏
工艺流程:定位固定浇筑混凝土U-PVC管接长外饰面(保温)施工。
混凝土外墙穿管道节点做法

砌体外墙穿管道节点做法

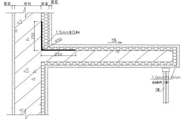
4.外墙空调洞口防渗漏
工艺流程:定位固定浇筑混凝土U-PVC管接长外饰面(保温)施工。

5.外墙线条防渗漏
工艺流程:钢筋混凝土结构板保温层水泥砂浆找坡饰面层。
凸出外墙飘窗、雨罩、线条、阳台防渗漏

6.外墙变形缝防渗漏
工艺流程:缝口处理填入填充料抹底层灰粘贴防水卷材外保温施工安装定型成品挡水板打密封胶外饰面层施工。
